Glad we got some amazing post-monsoon rain! Please check out the updated events!
Glad we got some amazing post-monsoon rain! Please check out the updated events!
Check out the storyboards in the hallway outside the HOA office that give information about the history of the community of Civano. This section of the website is "a work in progress". Please keep checking back.
Encourage face-to-face interaction. Applying the concepts of the New Urbanism, the Civano plan will foster connection with important gathering places such as the neighborhood center, the town center, and the community school. There will be a variety of social and cultural spaces.
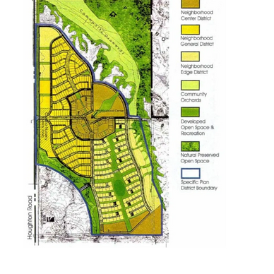
Source: Civano Neighborhood 1 Planned Area Development,
adopted October 2007
The built environment will enhance the pattern of the land, not work against it. “The richest parts of the land, in terms of drainage patterns, water resources and the resulting vegetation patterns are preserved. Source: Civano Neighborhood 1 Planned Area Development,
adopted October 2007
The plan will acknowledge the natural patterns of the sun, wind, and seasons. Public spaces will support human comfort through natural means (“shade trees nurtured by natural runoff”) and by minimizing the amount of heat absorbed in buildings and streets.
Source: Civano Neighborhood 1 Planned Area Development,
adopted October 2007
“Principles of sustainability include strategies for conservation, regeneration, and stewardship of resources.” Regeneration principles include restoration of natural riparian habitats and the planting of food-producing crops.
Source: Civano Neighborhood 1 Planned Area Development,
adopted October 2007
“A brand-new kind of community is being built
intermingling homes, workplace,
recreation, and schools
that will foster an ‘old town’ feeling
while showcasing state of the art solar
and fiberoptic technologies.”
– Early sales brochure for the Community of Civano
Have you heard this?
Civano is the name of an archaeological period of the HOHOKAM indigenous people.
The Hohokam culture existed between 650 A.D. & 1450 A.D. The “Civano” phase was between 1300 A.D to 1450 A.D. The Hohokam people lived in the Tucson area and are the ancestors of the Akimel O’odham (Pima) people. Civano may have been a chief or deity referred to in an Akimel O’odham (Pima) legend about the creation of the Casa Grande ruins structures.
Did you know?
The Hohokam people developed sophisticated social and economic systems while striving to live in balance with their natural environment. They emphasized community through social responsibility, recreation, artistry, and central gathering places.

Our First Name and Logo
Civano’s original logos, in use between 1988 and 1991, depicted Civano’s commitment to solar energy and included the community’s original name, Tucson Solar Village. The original logo included the words Civano, Tucson Solar Village, and a unique representation of sun rays.
Our Final Name and Logo
The Civano logo was designed by Kevin M. Kelly. It is a combination of a triangle and a spiral. The scroll, or spiral, is often found on Hohokam pottery. The scroll, or spiral, used frequently in Native American pieces to signify “ascent” and the passageway to other realities. Combining the triangle and scroll in a continuous line bestows a quality of sustainability.
Original Concept
Originally conceived as “a one-room country schoolhouse for the 21st century,”Civano Community School was the vision of Pam Bateman (known then as lead teacher), co-developer David Case, and Vail Schools Superintendent Calvin Baker.
Its First Locations
As a charter school, its first home, in 1999, was within Mesquite Elementary School in Rita Ranch. Pam had 19 K-6 students. In spring 2000, the school moved to a model home at 10442 E. Wayne Moody Lane, one of two demonstration homes of the American Lung Association. (This happened with the approval of Fannie Mae.) The school then gained a second teacher for grades 4 through 6, Jana Dawson. She still teaches there.
A Permanent Home
In January 2003, the school broke ground on property owned by Pulte on Drexel Road, and the school became operational that July.
A Green School
From the beginning, the school on Drexel Road incorporated the community’s values:
1) Reduce use of electricity, through solar panels and donated windows, encouraging the use of as much natural light as possible. Reduce use of water. Four 500-gallon cisterns capture water from roofs. This water and other reclaimed water takes care of the lawn area. Toilets are low-flow. Kids bring water bottles. Students tend the vegetable garden.
2) Reduce materials going to landfills. In 2007, this was the only Vail District school to recycle. Compost bins, rags instead of paper towels, dishes instead of paper plates.
‘Greenest School in the Nation’
On Jan. 19, 2008, the mayor, the school superintendent, and 60 students gathered to watch TV. But for a good reason. On the Ellen Show, Ellen DeGeneres was announcing the winner of the 2007 “Go Green & Small with ‘all’” contest. Civano Community School beat out more than 3,000 other schools. As winners of this award, students received a green iPod with a solar charger; and parents got a year’s supply of All Small and Mighty concentrated laundry detergent. Best of all, there was a $50,000 prize.
The monetary prize was put toward a down payment on property across Drexel Road from the elementary school for a middle school, to convert the school kitchen to a commercial kitchen, and to build a community room.
Keeping It Green
In the fall of 2008, the school hosted a “Green Schools in Tucson” session with the help of the Little Green Schoolhouse Cooperative (a parent volunteer group). Speaking was U.S. Rep. Gabrielle Giffords, a member of the House Science and Technology Committee.
Another Award
In January 2009, Pam Bateman and Phil Swaim, the school architect, accepted the first-ever Governor’s Achievement Award for Innovative School Design. The outgoing governor, Janet Napolitano, made the selection.
Two Schools Today
The Elementary School building became operation in July 2003. The Civano Middle School opened in 2010. Combined, the two schools have about 110 students.

Some of the streets of Civano are are named for locals who made a difference.
Eisenbergs Lane
Isadore Schifano Lane
Ralph Alvarez Place
George Brookbank Place
Karen Gannon Place
Kay Gartrell Place
Eleanor Maldonado Place
John McNair Place
Sixto Molina Lane
Wayne Moody Lane
Joseph Parella Lane
Roylstons Lane
George Tolman Place
Cele Peterson Lane
Click on the button below to see more information about those local people who made a difference.
PRESERVING THE SONORAN DESERT, THE ROLE OF CIVANO NURSERY
Les Shipley and his family, current owners of the Civano Nursery, played a huge role in supporting the guiding principles of the development of the New Community of Civano.
The principles of connection to the land, respect for climate, and belief in sustainability inspired the family to preserve thousands of native trees and plants.
The Shipley family connection to the development of Civano
What: Les Shipley, a retired horticulturist in British Columbia (BC), was attracted to the community by David Butterfield (also from BC). David, the founder of the Trust for Sustainable Development, recruited Les to develop a method to salvage mature trees and cacti before ground broke on Civano. Les convinced his sons to join him in this project. They relocated more than 800 Palo Verde and mesquite trees and 3000 barrel and saguaro cacti and preserved them for nearly 3 years until the homes were in place. They achieved a better than 90% success rate over previous methods.
How: Les (and his three sons) relocated the trees to an area along Houghton Rd on the edge of the land that would become Civano. They preserved them for over 3 years until the homes were in place. They achieved a better than 90% success rate over previous methods by hand-digging a deep trench around the root balls of the trees. This trench was filled with water and nutrients to stimulate root growth. After a period of time, the trench was dug deeper, the tree base was boxed, and tipped, exposing the tap root. After the tap root was cut, the tree was lifted from the hole with the fork lift called Goliath.
Why: Civano’s planning called for homes to feature mainly native, drought-tolerant plants, demonstrating the principles of passive solar shading, permaculture, and water harvesting techniques. Accordingly, the nursery’s own planning called for a teaching facility, with workshops and demonstrations to acquaint homeowners with desert planting.
Who: Les Shipley, his wife, Doris, and their three sons, Christopher, Nicholas, and Alexander are the owners of the garden center (Civano Nursery) at the corner of Houghton and Seven Generations. The Civano Nursery opened in 1999 and is still family owned. Later they opened a wholesale nursery in nearby Sahuarita. The Shipley families still live in Civano. Pictured below are, from left, Nick, Les, Alex, and Chris.
The Story of Goliath: A Heavy, Heavy Duty Forklift
When the Shipley family decided to take on the immense job of saving thousands of trees and plants on the land that would be the site of the new community of Civano, they knew they would need a heavy duty piece of machinery. The Shipleys saw this machine at a scrapyard moments before it was going to be cut to pieces by an acetylene torch. The Shipleys bought this heavy duty forklift that could lift tons and name it Goliath. Alex Shipley (Les’s youngest son) became the primary operator of Goliath.
1981
Then Governor of Arizona Bruce Babbitt, impressed by a tour of locally built, solar powered homes, asks the question, “What’s next?” This sparked a multi-organization discussion. The result was a vision for a new type of community, one with big reductions in natural resources use and a lot less impact on the environment.
1985
The U.S. Dept. of Energy had received $2.1 billion of penalties from Exxon Corp for overcharging for crude oil. This money to be distributed to states for energy conservation programs. The Tucson-Pima Metropolitan Energy Commission successfully petitioned for $250,000 to initiate planning of a community development focused on energy efficiency and environmental sustainability.
1988
State of Arizona gave a grant worth $210,000 to plan the “Tucson Solar Village.”
1991
Initially the project was called the Tucson Solar Village. Later the name of the project became Civano: A Model Sustainable Community.
1991
City of Tucson and community leaders selected a site. State Land Department committed 818 acres of undeveloped land on the SE side of Tucson, and the city approved rezoning for a master-planned community. The City of Tucson appointed staff project manager.
1996
In July, Case Enterprises (partners David Case and Kevin Kelly) and a partner named David Butterfield (Victoria, BC) purchased land from the state for $2.7 million and created a joint venture called Community of Civano LLC. Within the first year, Butterfield was bought out.
1996-1999
The people and companies involved in the Civano project expanded to include Andres Duany and Stefanos Polyzoides, experts on traditional neighborhood development, and William McDonough, a sustainability expert.
Timeline of Events: The Beginning (cont’)
1996-1999
More radical environmentalists in the Tucson community became disappointed that Civano plan would not go far enough with solar power and green materials. Newsletters and special events were used to attract Civano “pioneers”: the potential home-buyers.
1997
In October 1997, Civano Neighborhood 1 planned area development (PAD) was adopted by Tucson mayor and council. Also, Federal National Mortgage Assn. (Fannie Mae) became a 16% equity investor in the Community of Civano.
1997
Global Solar built the first building (on Houghton Road) in the 55-acre town center of the Civano Master Planned Area Development. Today this building is occupied by Arizona Optical Systems. 1998
The Community of Civano adopted the 1998 Sustainability Energy Standard for design and construction of all buildings in Civano.
1998
In February, the Community of Civano issued Design Principles and Guidelines to put the community, the builders, and the city of Tucson on the same page.
1998
David Case (one of the original owners of Community of Civano LLC) was bought out by Fannie Mae during the summer of 1998. Fannie Mae now owned 86% of the project.
1998
Over a six month period starting in October 1998 (thru May 1999), centralized sales were established: Civano sales agents now worked for Civano Realty and represented all Civano builders.
1998
“Covenants, Conditions, Restrictions and Easements for Civano: The Tucson Solar Village” were recorded with Pima County.
1998
The Neighborhood Center was constructed. By preceding the building of houses, this action reinforced the message that community is central to the principles of Civano.
1999
April 16: Grand opening of Civano, took place with 17 model homes by five builders:
SolarBuilt TJ Bednar RGC KE&G First Homes
1999
In May, sales were decentralized: Each builder now controlled its own sales agents. Civano Realty continued as broker for RGC until winter 2000.
1999
The first homeowners moved in during the summer of 1999. Duane and Pam Bateman and their daughter, Alli, from Oregon, moved to Morning Sky, near the north pool.
1999
RGC had trouble starting and completing homes. Rumors started. By the end of the year, RGC financial troubles became public.
1999
In December, Fannie Mae became 100% owner of Community of Civano. .
1999-2000
HGTV taped programs about Civano that were to be shown nationally. The programs illustrated the community’s design, energy efficiency, and xeriscaping.
2000
“Covenants, Conditions, Restrictions and Easements for Civano” were amended and restated in January..
2000
In May, RGC’s problems were covered by the media. Some disillusioned former RGC contract holders started a lawsuit against RGC, Civano Realty, and the Community of Civano..
2000
Rumors circulated that Diamond Ventures may become a partner with Fannie Mae in the Civano project. The rumor was that Diamond would not maintain Civano’s current energy standards or traditional neighborhood design.
2000
By late summer, Fannie Mae decided not to partner with Diamond Ventures.
2001
Richmond American Homes bought KE&G’s lots at Civano. KE&G departed. Two more builders entered Civano: ContraVest and Doucette.
2001
April – The community celebrated Civano’s second anniversary. A change in Fannie Mae’s management placed more focus on Civano.
2001
August – First integrated marketing plan for Civano was implemented..
2001
Fall – Civano Community School’s new construction business plan was issued. Civano continued to be described as controversial, and RGC problems were still mentioned in Tucson Star.
2002
October – First issue of the Town Crier newspaper was published by the Civano Neighbors Neighborhood Association, with the City of Tucson paying postage and handling the mailing.
2002
Winter – Ad campaign for Civano was revamped. Changes in marketing strategy emphasized quality, value, choice, and variety.
2003
In January, the Civano Community School broke ground on property owned by Pulte on Drexel Road, and the school became operational that July. Seven years later, in 2010, groundbreaking took place for Civano Middle School.
2004
January – Sunset magazine named Civano “Best New Community of the Year.”
2004
January – Fannie Mae sold Pulte Homes the land that would have become Neighborhoods II and III. This effectively limited the original New Urbanist plan for Civano to Neighborhood I.
2009
Fannie Mae sold the neighborhood center to Civano resident and nursery owner Les Shipley & family. In October, Civano had a two-day celebration of its 10th anniversary.
2019
Four lots remain for sale in Civano.
2022
Three of those 4 lots now have homes or structures built on them.

Here are some links to websites that tell the story of the Community of Civano.
https://www.terrain.org/2019/unsprawl/civano/
YouTube videos:
20th Anniversary
https://www.youtube.com/watch?v=3PCbdgKi1Pk
More to come
This video was created on the 10th Anniversary (2009) of the community of Civano. This video gives information about the original plans and history of Civano .
Civano Bulletin Board